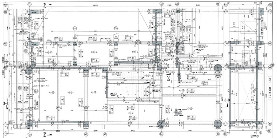
トレースCAD図面化・建築系図面作図・建築の施工図作図・CAD図面修正
当社を選ぶ理由
TRANSOVER 信仰をどこに置くか

経験豊富なデザインチーム
クリエイティブな思考に長年の経験を持つ建築家のチーム。

リーズナブルで競争力のある単価
TRANSOVER のインテリア デザインおよび建設サービスの見積もりは常に市場で最も競争力があります。 工事契約時に自由設計

プロフェッショナルなワークフロー
TRANSOVER に来て、顧客は最もプロフェッショナルな作業プロセスを体験し、迅速かつ正確な作業を保証します。
常に更新される
最新ニュース 同じ TRANSOVER

トレースCAD図面化
社内の設計部だけでは対応しきれない、施工専門会社の
顧客とパートナー
友好的な顧客と取引パートナー















